Pipe 1m
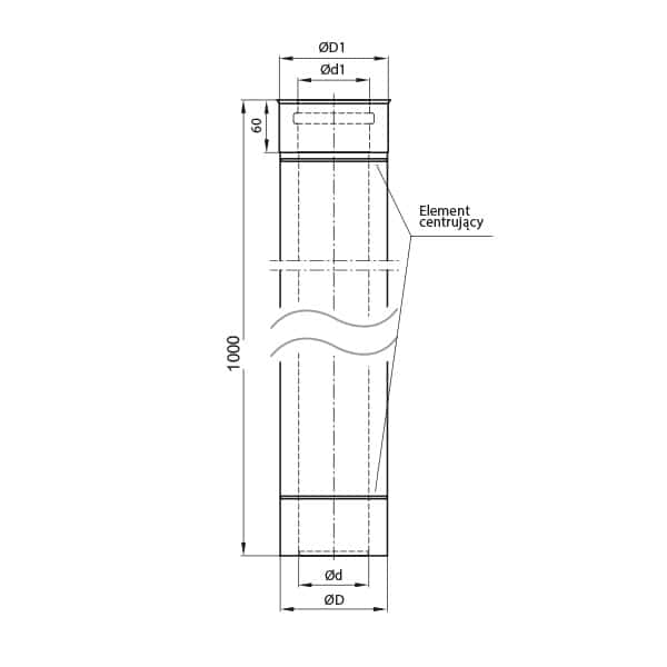
Round pipe welded with the use of the plasma technique, used to construct straight sections of the chimney liner. The elements are connected with the use of socket ends (60 mm – muff) enabling the liner’s free dilatation. Length – 1 m.

WSPS chimneys
Positive pressure
Round pipe welded with the use of the plasma technique, used to construct straight sections of the chimney liner. The elements are connected with the use of socket ends (60 mm – muff) enabling the liner’s free dilatation. Length – 1 m.

Our consultants are happy to help in selecting chimney system elements.